情報更新日:2025年04月18日/広告有効期限:なし
表示閲覧回数(過去30日間):115
お急ぎの方はお電話からお気軽にどうぞ!
019-629-3010 営業時間 / 9:30〜18:00(日祝17:30迄) 定休日 / 年末年始、GW、お盆
>物件詳細情報
| 基本情報 | |
|---|---|
| 物件番号 | 10007805921 | 
| 店舗形態 | 事務所, 店舗 | 
| オススメ業種 | 美容関係, 事務所 | 
| 物件名 | レーベン盛岡中央通THE BIRTH 101 | 
| 物件の状態 | 改築中 | 
| 引越し時期 | 相談 | 
| 契約形態と期間 | 普通契約期間:2年間更新料:1ヶ月 | 
| 所在地・交通 | |
|---|---|
| 所在地 | 岩手県盛岡市中央通3-4-3 | 
| 交 通1 | 東北本線盛岡駅 徒歩12分 | 
| 交 通2 | - | 
| 賃料 | |
|---|---|
| 賃 料 | 440,000円(税込) | 
| 敷 金 | 1,920,000円 | 
| 共益費・管理費 | 40,000円(税込) | 
| その他 | |
|---|---|
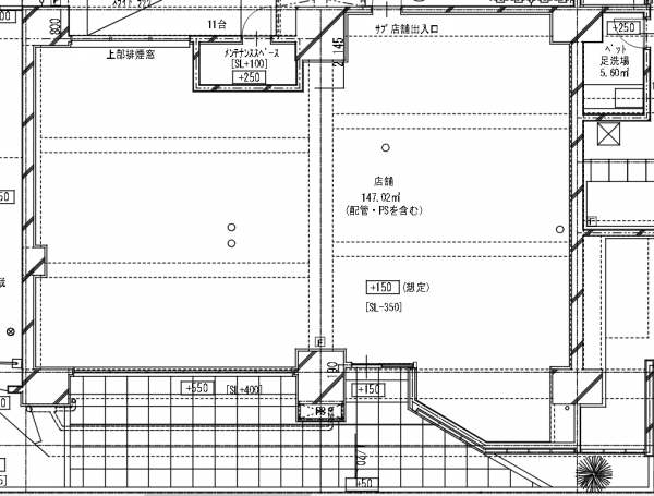
| 備考 | 駐車場は都度相談となります。 2025年2月末内装工事完了予定です。 | 
| 建物 | |
|---|---|
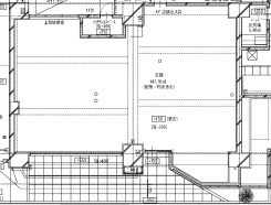
| 建物構造 | 鉄筋コンクリート造 | 
| 建物階建て | 地上13階 | 
| 施工年月 | 2020(令和2)年 07月 | 
| 募集物件の階数 | 地上 1階 101号室 | 
| 契約面積 | 147.02m2(44.47坪) | 
| 用途地域 | 商業地域 | 
| 設備 | |
|---|---|
| 水道 | 公営 | 
| 下水道 | 公共下水 | 
| ガス | 都市ガス | 
| エレベータ | 有 | 
| エアコン | 有 | 
| トイレ | 有/専用 | 
| 給湯室 | 無 | 
| キッチン | 無 | 
| ネット環境 | 無 | 
| 利用時間 | 24時間 | 
| 照明設備 | 有 | 
| 内装業者指定 | 無 | 
| 駐車場 | |
|---|---|
| 状 況 | 近隣 | 
| 空き台数 | 8台 | 
| 取引情報 | |
|---|---|
| 取引態様 | 媒介 | 
| 客付 | 可 | 
この物件をチェックした人はこんな物件も見ています
- 駐車場2台付きです。
 
 岩手県盛岡市本宮4-23-25
  52.61m2(15.91坪) 52.61m2(15.91坪)
  159,500円(税込) 159,500円(税込)
- 青山駅(前九年口)まで徒歩1分!駐車場2台可(現地要確認)
 
 岩手県盛岡市前九年3-27-41
  104.70m2(31.67坪) 104.70m2(31.67坪)
  88,000円(税込) 88,000円(税込)
- 駐車場4台付きです。
 
 岩手県盛岡市月が丘1-27-47
  82.64m2(25.00坪) 82.64m2(25.00坪)
  132,000円(税込) 132,000円(税込)
- 専用トイレ 個別空調エアコン
 
 岩手県盛岡市菜園2-7-33
  106.48m2(32.21坪) 106.48m2(32.21坪)
  286,000円(税込) 286,000円(税込)
- 盛岡駅まで徒歩約5分
 
 岩手県盛岡市開運橋通-3-38
  12.86m2(3.89坪) 12.86m2(3.89坪)
  55,000円(税込) 55,000円(税込)
今日チェックした物件
お急ぎの方はお電話からお気軽にどうぞ!
019-629-3010 営業時間 / 9:30〜18:00(日祝17:30迄) 定休日 / 年末年始、GW、お盆


 019-629-3010
019-629-3010









 
        
             
      

 
          




 019-629-3010
019-629-3010