情報更新日:2025年07月22日/広告有効期限:なし
表示閲覧回数(過去30日間):22
お急ぎの方はお電話からお気軽にどうぞ!
019-629-3010 営業時間 / 9:30〜18:00(日祝17:30迄) 定休日 / 年末年始、GW、お盆
>物件詳細情報
| 基本情報 | |
|---|---|
| 物件番号 | 10007805425 |
| 店舗形態 | 事務所 |
| オススメ業種 | 事務所 |
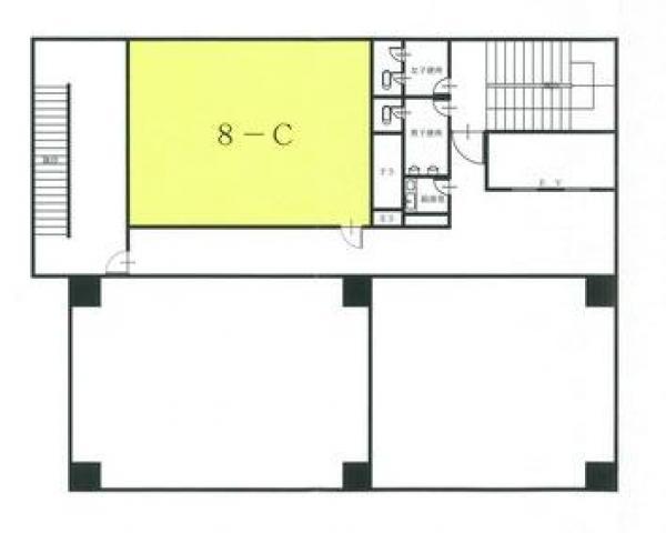
| 物件名 | 菱和ビル 8-C |
| 物件の状態 | 空き |
| 引越し時期 | 即 |
| 契約形態と期間 | |
| 所在地・交通 | |
|---|---|
| 所在地 | 岩手県盛岡市中央通3-3-2 |
| 交 通1 | 東北本線盛岡駅 徒歩10分 |
| 交 通2 | - |
| 賃料 | |
|---|---|
| 賃 料 | 147,400円(税込) |
| 敷 金 |
330,000円 |
| その他 | |
|---|---|
| 備考 | 保険・保証会社要加入です。水道・電気・ガスは毎月家主より請求です。 |
| 建物 | |
|---|---|
| 建物構造 | 鉄骨鉄筋コンクリート造 |
| 建物階建て |
地上9階 |
| 施工年月 | 1976(昭和51)年 02月 |
| 募集物件の階数 | 地上 8階 C号室 |
| 契約面積 | 58.22m2(17.61坪) |
| 用途地域 | 商業地域 |
| 設備 | |
|---|---|
| 水道 | 公営 |
| 下水道 | 公共下水 |
| ガス | 都市ガス |
| エレベータ | 有/2基 |
| エアコン | 有 |
| トイレ | 有/共用 |
| 給湯室 | 有/共用 |
| キッチン | 有/共用 |
| 照明設備 | 有 |
| 内装業者指定 | 有 |
| 駐車場 | |
|---|---|
| 状 況 | 空有 |
| 駐車料金 | 22,000円(税込) |
| 取引情報 | |
|---|---|
| 取引態様 | 媒介 |
| 客付 | 可 |
この物件をチェックした人はこんな物件も見ています
- 資材置き場や駐車場にどうぞ!

岩手県盛岡市永井8-20-2
396.60m2(119.97坪)
60,000円(税込)
- 青山駅(前九年口)まで徒歩1分!駐車場2台可(現地要確認)

岩手県盛岡市前九年3-27-41
104.70m2(31.67坪)
88,000円(税込)
- 敷地内駐車場10台付き。

岩手県盛岡市津志田南3-15-40
189.17m2(57.22坪)
319,000円(税込)
- 人気のみたけ地区です。 ※駐車場1台に付き 5,500円(空き3台 随時要確認)

岩手県盛岡市みたけ4-4-2
49.50m2(14.97坪)
121,000円(税込)
- バスセンター徒歩圏内の飲食店居抜き物件♪2階は居住用として利用可能です♪

岩手県盛岡市南大通1-2-7
81.79m2(24.74坪)
242,000円(税込)
今日チェックした物件
お急ぎの方はお電話からお気軽にどうぞ!
019-629-3010 営業時間 / 9:30〜18:00(日祝17:30迄) 定休日 / 年末年始、GW、お盆


019-629-3010
















019-629-3010