情報更新日:2024年12月23日/広告有効期限:なし
表示閲覧回数(過去30日間):27
お急ぎの方はお電話からお気軽にどうぞ!
019-629-3010 営業時間 / 9:30〜18:00(日祝17:30迄) 定休日 / 年末年始、GW、お盆
>物件詳細情報
| 基本情報 | |
|---|---|
| 物件番号 | 10007805532 |
| 店舗形態 | 事務所 |
| オススメ業種 | 事務所, 塾・学校・教育関係 |
| 物件名 | セブンハイツ(2F事務所) |
| 物件の状態 | 空き |
| 引越し時期 | 相談 |
| 契約形態と期間 | |
| 所在地・交通 | |
|---|---|
| 所在地 | 岩手県盛岡市三本柳-5地割31-1 |
| 交 通1 | 東北本線岩手飯岡駅 徒歩25分 |
| 交 通2 | - |
| 賃料 | |
|---|---|
| 賃 料 | 88,000円(税込) |
| 敷 金 |
2ヶ月 |
| 共益費・管理費 | 5,000円(税込) |
| 礼 金 | 1ヶ月 |
| その他 | |
|---|---|
| 備考 | |
| 建物 | |
|---|---|
| 建物構造 | 木造 |
| 建物階建て |
地上2階 |
| 施工年月 | 1979(昭和54)年 04月 |
| 募集物件の階数 | 地上 1階 |
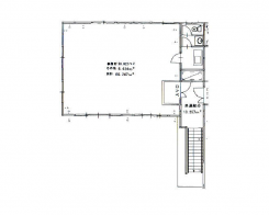
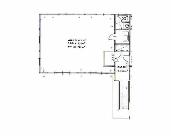
| 契約面積 | 74.38m2(22.50坪) |
| 用途地域 | 1種住居 |
| 設備 | |
|---|---|
| 水道 | 公営 |
| 下水道 | 公共下水 |
| ガス | LPG |
| エレベータ | 無 |
| トイレ | 有/専用 |
| 給湯室 | 有/専用 |
| 駐車場 | |
|---|---|
| 状 況 | 空無 |
| 取引情報 | |
|---|---|
| 取引態様 | 媒介 |
| 客付 | 可 |
この物件をチェックした人はこんな物件も見ています
- 盛岡駅徒歩6分のテナントです♪駐車場4台付、追加駐車場要相談

岩手県盛岡市盛岡駅西通1-6-12
87.57m2(26.49坪)
275,000円(税込)
- 岩手飯岡駅徒歩5分。駐車場2台付きです。

岩手県盛岡市永井23-17-1
39.67m2(12.00坪)
88,000円(税込)
- ロードサイドの貸店舗・貸事務所です!!

岩手県盛岡市みたけ4-17-36
79.20m2(23.96坪)
200,000円(税込)
- 盛岡駅より徒歩2分の立地です。用途等ご相談下さい。

岩手県盛岡市盛岡駅前通-9-19
34.12m2(10.32坪)
147,576円(税込)
- 駐車場3台付きです。エアコンは残置物です。

岩手県盛岡市津志田町2-23-6
34.78m2(10.52坪)
80,000円(税込)
今日チェックした物件
お急ぎの方はお電話からお気軽にどうぞ!
019-629-3010 営業時間 / 9:30〜18:00(日祝17:30迄) 定休日 / 年末年始、GW、お盆


019-629-3010



















019-629-3010